店舗事務所投資物件
大江戸線 本郷三丁目駅 徒歩1分/373.56㎡
価格3億7,800万円
利回り4.7%
年間収益17,936,484円 (約149.4万円/月)
物件概要
-
Warning: Undefined array key "nyukyo_kano_jiki" in /home/xs211746/fpro.jp/public_html/e-core.fpro.jp/wp-content/themes/indexjapan/library/Bukken/BukkenInfo.php on line 750
- 物件種別
- 店舗事務所
- 所在地
- 東京都文京区本郷2丁目
- 交通
- 大江戸線「本郷三丁目駅」より徒歩1分
丸ノ内線「本郷三丁目駅」より徒歩2分
大江戸線「春日駅」より徒歩9分
- 価格
- 3億7,800万円
- 表面利回り
- 4.7%
- 年間収益
- 17,936,484円 (約149.4万円/月)
- 建物構造
- SRC造
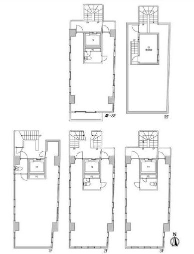
- 建物面積
- 373.56㎡
- 階数
- 地上8階
- 築年月
- 1983年1(築42年)
- 間取り
- ー
- 入居/引渡
- 即時
- 駐車場(月額)
- 無
- 借地料
- ー
- 私道負担面積
- ー
- 地目
- ー
- 都市計画
- 市街
- 用途地域1
- 商業
- 用途地域2
- ー
- 地勢
- ー
- 土地面積
- 75.92㎡
- 私道負担面積
- ー
- セットバック
- ー
- 建ぺい率
- 80%
- 建ぺい率2
- ー
- 容積率1
- 600%
- 容積率2
- ー
- 接道
- 状況:一方 舗装:有
1:北 / 公道 / 幅員33m / 無
- 国土法届け出
- ー
- 法令上の制限
- ー
- 引渡し
- 即時
- 建築確認番号
- ー
- 周辺環境
- ー
- 更新日
- 2022/07/03
- 設備その他
- ー
- 条件その他
- ー
アルファ丸嶋不動産株式会社
- TEL
- 03-5910-3550
- 営業時間
- 09:30~18:30
- 定休日
- 水曜日
- 免許
- 免許宅地建物取引業免許 東京都知事 (5) 第78681号
建設業 東京都知事(般-23)137669号
第二種金融商品取引業 関東財務局長(金商)第2700号
一般不動産投資顧問業 一般(第1269号)
賃貸住宅管理業 国土交通大臣(2)2397号

