アパート投資物件
小田急線 祖師ヶ谷大蔵駅 徒歩13分/104.34㎡
価格8,800万円
利回り4.4%
年間収益3,912,000円 (約32.6万円/月)
物件概要
-
Warning: Undefined array key "nyukyo_kano_jiki" in /home/xs211746/fpro.jp/public_html/e-core.fpro.jp/wp-content/themes/indexjapan/library/Bukken/BukkenInfo.php on line 750
- 物件種別
- アパート
- 所在地
- 東京都世田谷区砧1丁目
- 交通
- 小田急線「祖師ヶ谷大蔵駅」より徒歩13分
小田急線「成城学園前駅」より徒歩25分
- 価格
- 8,800万円
- 表面利回り
- 4.4%
- 年間収益
- 3,912,000円 (約32.6万円/月)
- 建物構造
- 軽量鉄骨造
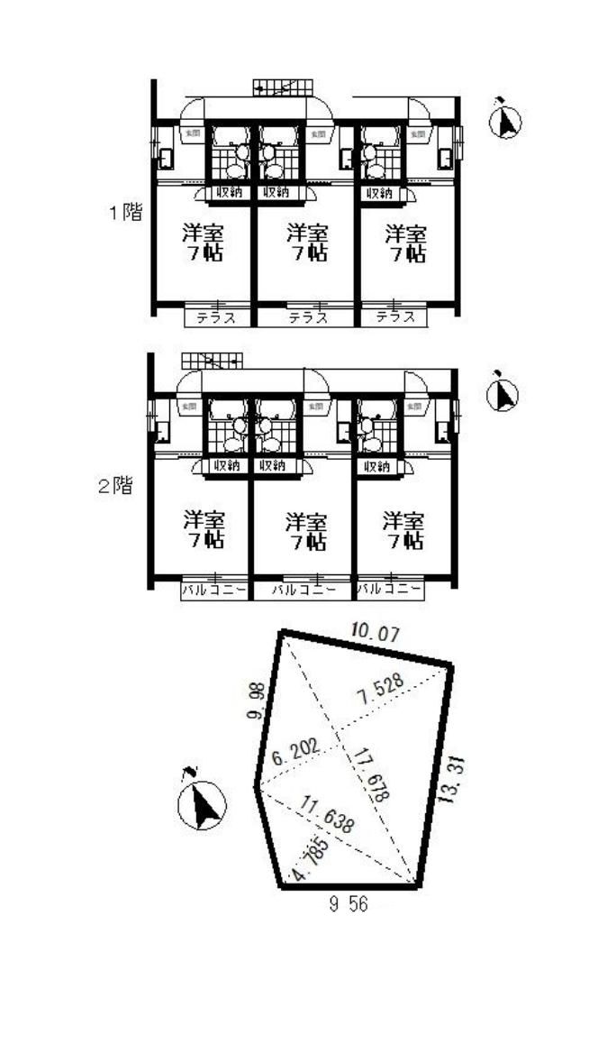
- 建物面積
- 104.34㎡
- 階数
- 地上2階
- 築年月
- 1981年1(築44年)
- 間取り
- ー
- 入居/引渡
- 相談
- 駐車場(月額)
- 有 18,000円 / 台
- 借地料
- ー
- 私道負担面積
- ー
- 地目
- ー
- 都市計画
- 市街
- 用途地域1
- 一低
- 用途地域2
- ー
- 地勢
- ー
- 土地面積
- 152.46㎡
- 私道負担面積
- ー
- セットバック
- 無
- 建ぺい率
- 50%
- 建ぺい率2
- ー
- 容積率1
- 100%
- 容積率2
- ー
- 接道
- 状況:角地 舗装:有
1:南 / 公道 / 幅員7.9m / 無
2:西 / 公道 / 幅員4m / 無
- 国土法届け出
- 不要
- 法令上の制限
- 日影規制(4-2.5H 1.5m)緑化地域 景観計画区域
- 引渡し
- 相談
- 建築確認番号
- S56確建1120号
- 周辺環境
- ー
- 更新日
- 2022/06/05
- 設備・特徴
- 設備その他
- ジェイコム、ケーブルテレビ導入済み。
- 条件その他
- 別の不動産管理会社あり。管理委託契約は売買契約締結後3か月後に委託契約を解約することになります(管理委託手数料は別途締結時に定める約定です)。
アルファ丸嶋不動産株式会社
- TEL
- 03-5910-3550
- 営業時間
- 09:30~18:30
- 定休日
- 水曜日
- 免許
- 免許宅地建物取引業免許 東京都知事 (5) 第78681号
建設業 東京都知事(般-23)137669号
第二種金融商品取引業 関東財務局長(金商)第2700号
一般不動産投資顧問業 一般(第1269号)
賃貸住宅管理業 国土交通大臣(2)2397号

