アパート投資物件
京王線 幡ヶ谷駅 徒歩12分/121.41㎡
物件概要
-
Warning: Undefined array key "nyukyo_kano_jiki" in /home/xs211746/fpro.jp/public_html/e-core.fpro.jp/wp-content/themes/indexjapan/library/Bukken/BukkenInfo.php on line 750
- 物件種別
- アパート
- 所在地
- 東京都渋谷区本町5丁目
- 交通
- 京王線「幡ヶ谷駅」より徒歩12分
- 価格
- 1億1,400万円
- 表面利回り
- 4.5%
- 年間収益
- ー
- 建物構造
- 木造
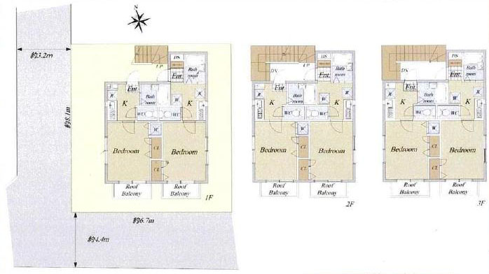
- 建物面積
- 121.41㎡
- 階数
- 地上3階
- 築年月
- 2013年7月(築12年)
- 間取り
- ー
- 入居/引渡
- 相談
- 駐車場(月額)
- 無
- 借地料
- ー
- 私道負担面積
- ー
- 地目
- ー
- 都市計画
- 市街
- 用途地域1
- 近商
- 用途地域2
- ー
- 地勢
- ー
- 土地面積
- 86.11㎡(公簿)
- 私道負担面積
- ー
- セットバック
- ー
- 建ぺい率
- 60%
- 建ぺい率2
- ー
- 容積率1
- 176% (前面道路幅員による。)
- 容積率2
- ー
- 接道
- 状況:角地 舗装:有
1:南 / 公道 / 幅員4.4m / 無
2:西 / 私道 / 幅員3.2m / 無
- 国土法届け出
- 不要
- 法令上の制限
- ー
- 引渡し
- 相談
- 建築確認番号
- ー
- 周辺環境
- セブンイレブン渋谷本町店 200m 徒歩 3分
ミニピアゴ渋谷本町5丁目店 300m 徒歩 4分
区立本町氷川公園 160m 徒歩 2分
渋谷本町五郵便局 80m 徒歩 1分
- 更新日
- 2022/04/03
- 設備・特徴
- 設備その他
- ー
- 条件その他
- ー
アルファ丸嶋不動産株式会社
- TEL
- 03-5910-3550
- 営業時間
- 09:30~18:30
- 定休日
- 水曜日
- 免許
- 免許宅地建物取引業免許 東京都知事 (5) 第78681号
建設業 東京都知事(般-23)137669号
第二種金融商品取引業 関東財務局長(金商)第2700号
一般不動産投資顧問業 一般(第1269号)
賃貸住宅管理業 国土交通大臣(2)2397号

