アパート投資物件
京王線 幡ヶ谷駅 徒歩8分/231.23㎡
価格1億4,580万円
年間収益7,776,000円 (約64.8万円/月)
物件概要
-
Warning: Undefined array key "nyukyo_kano_jiki" in /home/xs211746/fpro.jp/public_html/e-core.fpro.jp/wp-content/themes/indexjapan/library/Bukken/BukkenInfo.php on line 750
- 物件種別
- アパート
- 所在地
- 東京都渋谷区幡ヶ谷3丁目
- 交通
- 京王線「幡ヶ谷駅」より徒歩8分
京王線「笹塚駅」より徒歩10分
- 価格
- 1億4,580万円
- 表面利回り
- ー
- 年間収益
- 7,776,000円 (約64.8万円/月)
- 建物構造
- 木造
- 建物面積
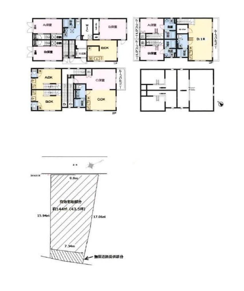
- 231.23㎡
- 階数
- 地上3階
- 築年月
- 2004年8月(築21年)
- 間取り
- ー
- 入居/引渡
- 相談
- 駐車場(月額)
- 無
- 借地料
- ー
- 私道負担面積
- ー
- 地目
- 宅地
- 都市計画
- 市街
- 用途地域1
- 一住
- 用途地域2
- ー
- 地勢
- ー
- 土地面積
- 144.13㎡(公簿)
- 私道負担面積
- ー
- セットバック
- 有
- 建ぺい率
- 60%
- 建ぺい率2
- ー
- 容積率1
- 300%
- 容積率2
- ー
- 接道
- 状況:一方 舗装:有
1:北西 / 公道 / 幅員4m
- 国土法届け出
- ー
- 法令上の制限
- ー
- 引渡し
- 相談
- 建築確認番号
- ー
- 周辺環境
- 静かな住宅地
- 更新日
- 2022/02/13
- 設備・特徴
- 設備その他
- 現況賃貸中、総戸数5戸中、5戸賃貸中、(令和4年1月27日現在)、賃料収入777.6万円/年、表面利回り約5.33%
- 条件その他
- 1.登記簿面積と確定測量測量の面積が異なります。2.地積変更登記は行いません。3.敷地東側一部が、無償道路として提供されています。その為、有効使用面積が減少します。
アルファ丸嶋不動産株式会社
- TEL
- 03-5910-3550
- 営業時間
- 09:30~18:30
- 定休日
- 水曜日
- 免許
- 免許宅地建物取引業免許 東京都知事 (5) 第78681号
建設業 東京都知事(般-23)137669号
第二種金融商品取引業 関東財務局長(金商)第2700号
一般不動産投資顧問業 一般(第1269号)
賃貸住宅管理業 国土交通大臣(2)2397号






